In over 40 years of building we have never built the same home twice.
We design your home to suit your vision, which means we don’t just have a gallery of standard floor plans or elevations for you to choose from.
From the very first phone call you’ll speak directly with Gary. He’ll listen to your ideas, ask lots of questions, and then work with you to design your home. Gary likes to ensure that everything possible is taken into consideration when drawing up your design, which is why he’ll personally visit your site (where possible) before he starts, to make sure he has a full understanding of the block and how to make it work best for you when designing your home.
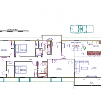
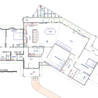
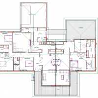
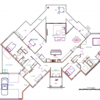
Once Gary draws up your design, you will receive a mix of line drawings and 3D conceptual drawings and models to give you a real feel for the building and allow you to see straight away if you’re all on the same page – and if its not quite there we can make changes or even start again; this is all part of working with you to achieve your dream.
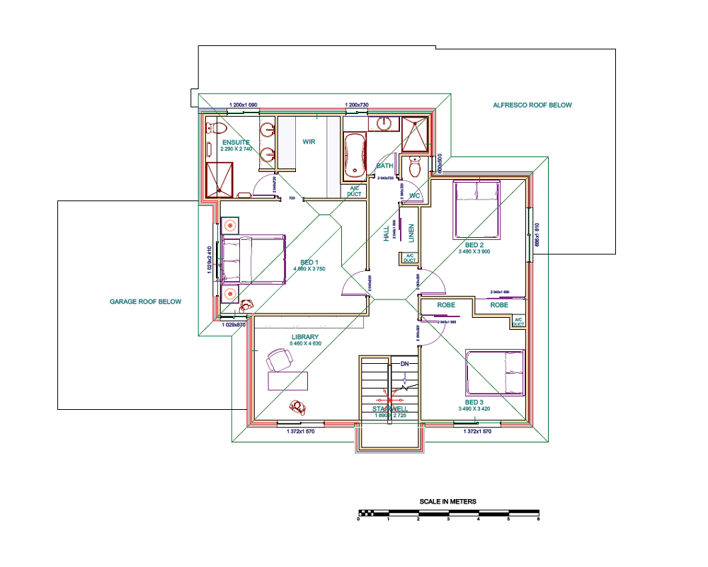
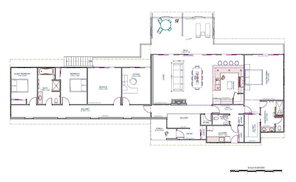
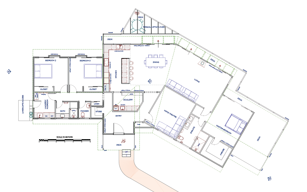
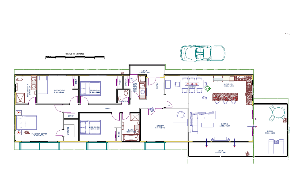
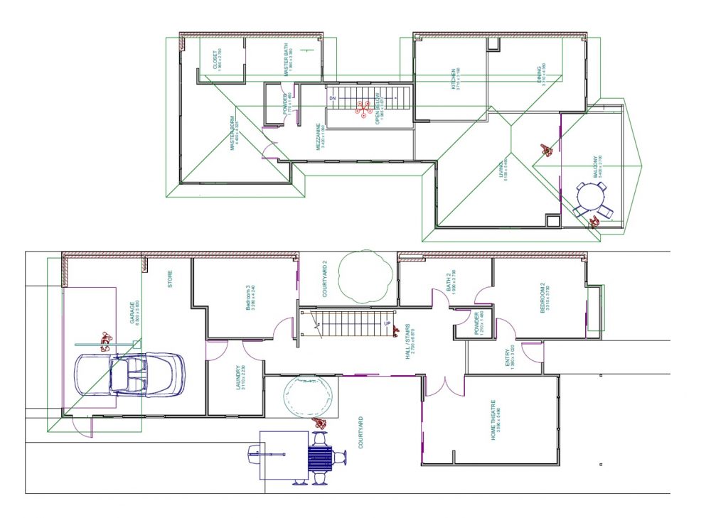
The examples below are provided to give insight into some of the projects we’ve drawn up in the past.
Timber framed pole homes
Brick Homes





































